- ₹72,71,000
Description
Prestige Suncrest Apartments is a thoughtfully designed residential development offering modern 1,2,3,4 BHK homes with a blend of comfort, style, and convenience. Located in one of Bangalore’s fast-growing neighborhoods, this project is crafted to meet the lifestyle needs of urban families. With spacious layouts, contemporary architecture, and lush green surroundings, it creates a perfect balance between city life and peaceful living.
Key Highlights
- Well-planned apartments with efficient space utilization
- Contemporary design with premium fittings and finishes
- Gated community with 24/7 security
- Landscaped gardens and open spaces
- Ample parking and smart infrastructure
- Family-friendly environment with lifestyle amenities
Location Advantage Of Prestige Suncrest
Situated in Bangalore, Prestige Suncrest Apartments enjoys excellent connectivity to major IT hubs, schools, hospitals, and entertainment zones.
- Easy access to Outer Ring Road and key business districts
- Close proximity to reputed educational institutions
- Nearby healthcare centers and hospitals
- Well-connected to shopping malls and daily essentials
- Smooth connectivity to airport and railway stations
Amenities
Residents can enjoy a wide range of modern amenities designed for a comfortable lifestyle:
- Fully equipped clubhouse
- Swimming pool and fitness center
- Children’s play area
- Jogging track and landscaped parks
- Indoor games and recreational spaces
- Multipurpose hall for social gatherings
Investment Potential
Investing in Prestige Suncrest Apartments offers strong growth potential due to Bangalore’s booming real estate market. The project’s strategic location, brand value, and premium construction quality make it a promising choice for both end-users and investors. With increasing demand for quality housing in Bangalore, property appreciation and rental income opportunities are highly favorable.
Why Choose Prestige Suncrest
- Trusted brand with a strong track record
- Prime location with excellent connectivity
- Modern lifestyle amenities
- High-quality construction and design
- Ideal for both living and investment
About the Builder
Prestige Group is one of India’s leading real estate developers, known for delivering landmark residential and commercial projects. With decades of experience, the builder is recognized for innovation, quality construction, and timely delivery, making it a trusted name among homebuyers.
Address
Open on Google Maps-
Address: Krishtal Pack, Jigani Rd, Electronic City, Bengaluru, Karnataka 560099
-
City: Bengaluru
-
State/county: Karnataka
-
Area: South Bengaluru
-
Country: India
Details
Updated on April 23, 2026 at 2:11 pm-
Price ₹72,71,000
-
Land Area 6 Acres
-
Type Apartment
-
Property Status New Listing
-
Towers and Blocks 2 Towers
-
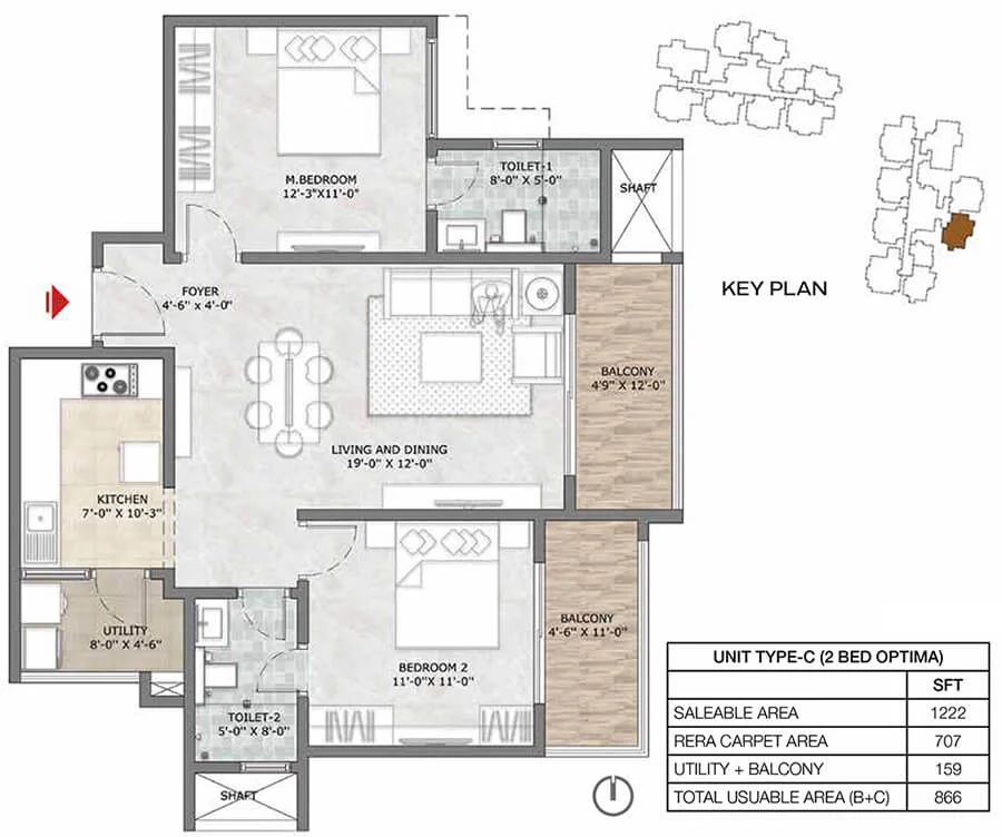
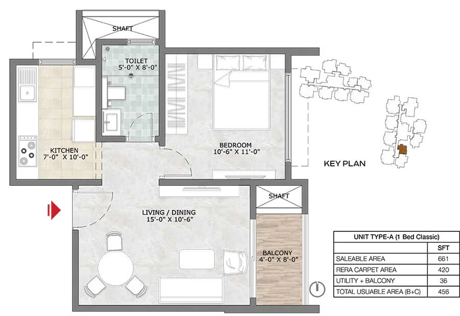
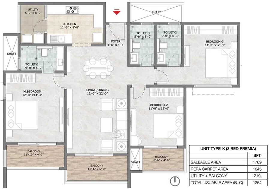
Unit Variants 1,2,3 BHK
-
Delivery Time 2028
-
No. Of Units 437
-
Floor B + G + 26 Floors
Overview
- 6 Acres
- 1,2,3 BHK
- 437
- 2 Towers
Mortgage Calculator
-
Down Payment
-
Loan Amount
-
Monthly Mortgage Payment
-
Property Tax
-
Home Insurance
-
PMI
-
Monthly HOA Fees
Contact Information
View ListingsSimilar Listings
Prestige Southern Star New Launch In Bannerghatta Main Road
- ₹83,70,000
Prestige Fernvale New Premium Apartments on Sarjapur Road
- ₹1,34,00,000
Sobha Neopolis New Luxury Living in Panathur Road, Bangalore
- ₹2,60,00,000
Brigade Belvedere New Launch Luxury Apartments in Budigere Cross
- ₹95,00,000
- projects@brickstohome.com



